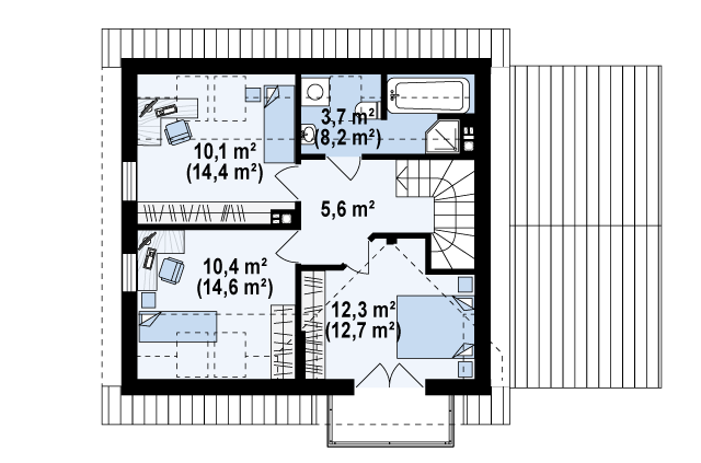
Detalii
  • Suprafata utila: 200 m²
  • Suprafata construita: 110 m²
  • Dormitoare: 3
  • Bai: 2
  • Garaje: 1
  • Suprafata garaj: 23m²